Residencial Jacaranda — 18 современных спаренных домов рядом с центром города
Spain Realty Group рада представить Residencial Jacaranda, очень интересный проект, который состоит в общей сложности из 18 спаренных домов с большим солярием на крыше и частным бассейном. Все дома имеют площадь 104 м2 и построены на двух уровнях.
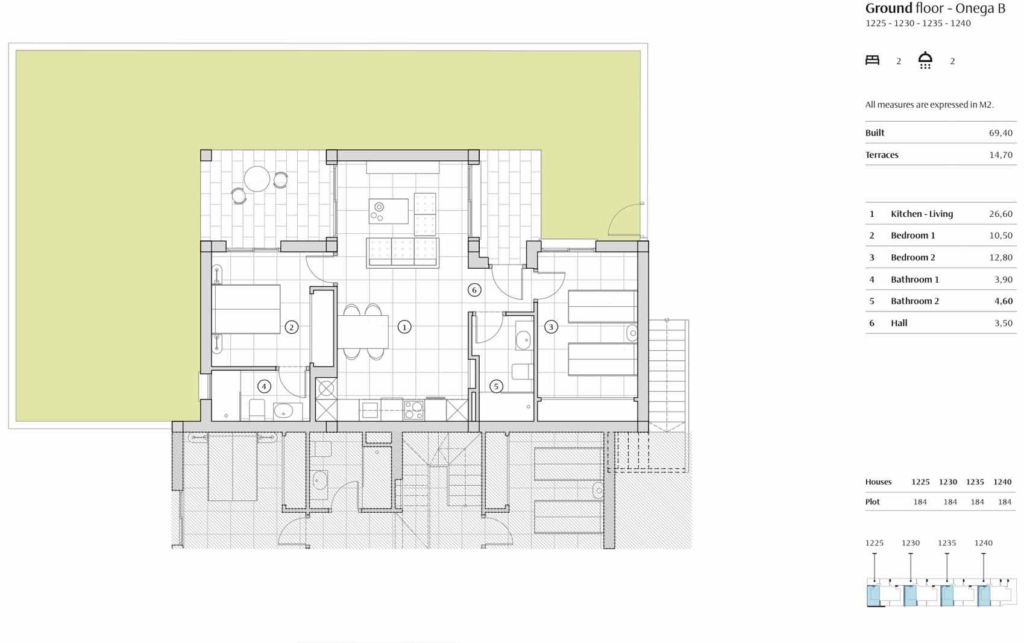
На нижнем этаже есть светлая гостиная с американской кухней, большая спальня со встроенным шкафом и ванной комнатой. Из гостиной у вас есть прямой доступ к солнечной террасе с частным бассейном, в то время как из кухни и спальни вы можете выйти на другую террасу, которую можно использовать, например, в качестве прачечной или подсобного помещения.
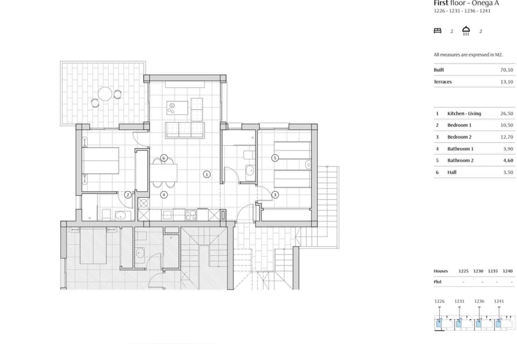
На втором этаже находятся две спальни, одна со встроенным шкафом, а другая с гардеробной, ванной комнатой и террасой, доступ к которой осуществляется из самой большой спальни и прихожей.
Поднимаясь на крышу мы попадаем на большой солярий, площадью 41 м2, где много места для шезлонгов, террасной мебели, открытой кухни с зоной барбекю и прекрасным видом на окрестности.
В пешей доступности вы найдете рестораны, супермаркеты, магазины и офисы банков. В нескольких минутах езды вы можете добраться до торгового центра Dos Mares, нескольких полей для гольфа или прекрасных пляжей Мар Менор или Торре-де-ла-Орадада.
Срок завершения строительства 1- й фазы — июнь 2024 года
Свяжитесь со Spain Realty Group для получения дополнительной информации!
Цена: от 274 000 евро
10 лет с процентной ставкой 2.5%



























































































































































